GLS概率篩產品說明
1、GLS概率篩是一種新型高效的篩分設備,其篩箱運行軌跡為直線。該系列篩機系概率理輪與工程實際有機結合的成功典范,其全新的設計理念和獨特的結構及篩分原理成就了概率篩幾近完美的篩分效果,具有廣闊的應用前景。
2、GLS概率篩系我公司引進德國和西班牙等國先進技術,結合我國實際情況及使用環境充分論證、板盡優化而設計的,與普通篩機相比,該系列篩機具有非常高的篩分效率,廣泛適用于醫藥、化工、食品等行業對中、細粒度的精細篩分。
3、為什么要選用GLS概率篩,因為GLS概率篩質量可靠、投資低、體積小、運行可靠的專用設備,是保證砂漿篩分質量和產量的關鍵,概率篩為首選;GLS概率篩在預拌砂漿中的篩分、分級一般設置在原料儲存倉頂部,經篩分分級后的不同粒徑的砂子直接送入相應的儲存倉。在砂子進入烘干機前,為防止大的塊狀物料進入烘干機,可以選用直線篩或高效篩進行預篩。
GLS概率篩的應用
GLS概率篩主要用于砌筑砂漿、抹面砂漿、保溫砂漿、天然河沙,石英砂聚合物保溫砂漿、粘結砂漿、抗裂砂漿、地坪砂漿、裝飾砂漿、防水砂漿、膩子粉、粉刷石膏、彈性砂漿等等各種烘干后的粒度篩選和分級。合作廠家:長沙中聯重工;三一重工;上海摩臺克;天地重工,圓友機械等知名企業。
GLS概率篩現場:

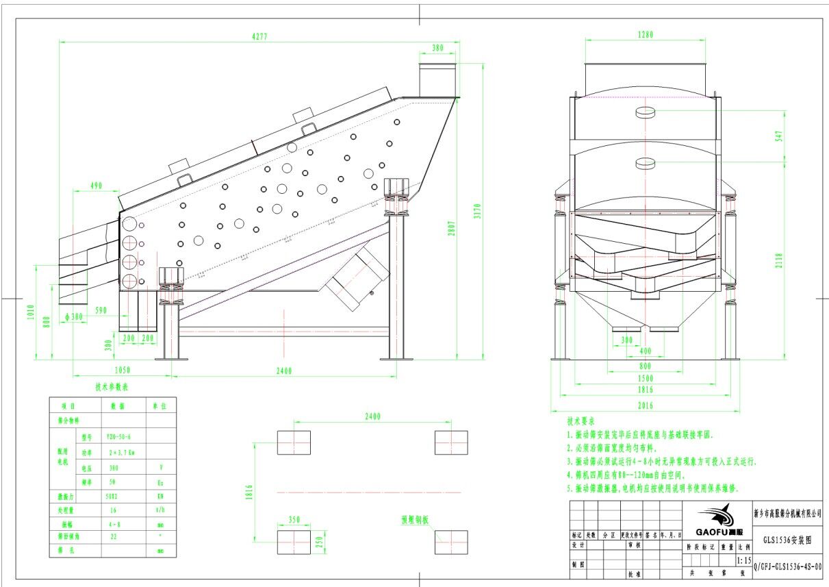
GLS概率篩外形圖:

GLS概率篩選用提示
1、 GLS概率篩,計有(14)個定型規格并有振動電機和激振器兩種振源形式,適用不同作業環境需求,選用時請確定電壓制式及有無防爆要求;
2、設備安裝方式有支座式和吊掛式及二者搭配式等多種形式,選型時,請務必慎重考慮。
GLS概率篩的結構
GLS概率篩常用材質為Q235A碳鋼,均為封閉結構;振動電機作激振源,分別為一層、二層、三層、四層等多層設計。
GLS概率篩常用型號
GLS-1020型;GLS-1225型;GLS-1530型;GLS-1536型;GLS-1836型;GLS-2030型;
GLS概率篩技術數據表
|
型號 |
常用網孔尺寸 |
大約處理量 |
配套電機型號 |
功率 |
|
GLS1020 |
0.3-0.6-1.2-2.4-4.5 |
15t/h |
YZO20-6 |
1.5KW*2 |
|
GLS1224 |
0.3-0.6-1.2-2.4-4.5 |
25t/h |
YZO25-6 |
1.8KW*2 |
|
GLS1536 |
0.3-0.6-1.2-2.4-4.5 |
35t/h |
YZO50-6 |
3.7KW*2 |
手機版|

















